www.ConceptDraw.com

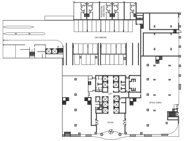
TAC House Ground Floor Plan

This sample was designed on the base of Wikimedia Commons file: GROUND FLOOR PLAN - 222 EXHIBITION STREET.pdf. "ground floor plan of 222 exhibition street" [commons.wikimedia.org/wiki/File:GROUND_FLOOR_PLAN_-_222_EXHIBITION_STREET.pdf] This file is licensed under the Creative Commons Attribution-Share Alike 4.0 International license. [creativecommons.org/licenses/by-sa/4.0/deed.en] "222 Exhibition Street (TAC House) is a 26 level office building in Melbourne, Australia. Constructed 1986-88 and designed by Denton Corker Marshall, 222 Exhibition Street is a notable example of Postmodernism by a firm that was later to gain international fame." [222 Exhibition Street (TAC House). Wikipedia] The example "TAC House Ground Floor Plan" was designed using ConceptDraw PRO software extended with Floor Plans solution from Building Plans area of ConceptDraw PRO Solution Park.
222 Exhibition Street
222 Exhibition Street, wall, straight staircase, stair section, room, revolving door, rectangular column, column, opening, exterior wall, elevator, double door, door, divided return stairs, circular column, column, L-shaped stairs, L-shaped staircase,