www.ConceptDraw.com

Building services coordinated drawing

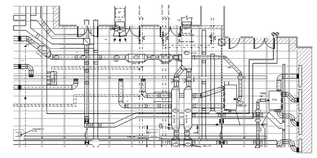
This mechanical systems drawing sample was designed on the base of Wikimedia Commons file: Building services coordinated drawing.JPG. [commons.wikimedia.org/wiki/File:Building_services_coordinated_drawing.JPG ] This file is licensed under the Creative Commons Attribution-Share Alike 3.0 Unported license. [creativecommons.org/licenses/by-sa/3.0/deed.en] "Mechanical systems drawing is a type of technical drawing that shows information about heating, ventilating, air conditioning and transportation around the building (Elevators or Lifts and Escalator). It is a powerful tool that helps analyze complex systems. These drawings are often a set of detailed drawings used for construction projects; it is a requirement for all HVAC work. They are based on the floor and reflected ceiling plans of the architect. After the mechanical drawings are complete, they become part of the construction drawings, which is then used to apply for a building permit. They are also used to determine the price of the project." [Mechanical systems drawing. Wikipedia] The mechanical systems drawing example "Building services coordinated drawing" was designed using ConceptDraw DIAGRAM software extended with HVAC Plans solution from the Building Plans area of ConceptDraw Solution Park.
, wall, vertical duct, variable bend, duct, valve, transitioning, reducing, duct, text label, supply air grill, strainer, straight duct, return, duct, rectangular outlet, pipe flow arrow, flow indicating assembly, flexible, connection, double door, door, damper, automatic 2-way valve, Y junction, duct,