www.ConceptDraw.com
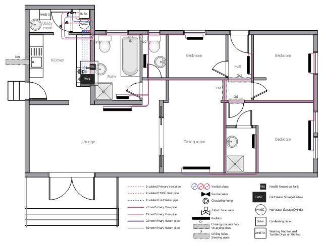
Plumbing and piping plan
Plumbing and piping plan
House water heating
Plumbing and piping plan